

F9T43X電動推桿扇形眼鏡閥
產品概述 電動推桿扇形 眼鏡閥 又名電動推桿扇形盲板閥,主要由左閥體、右閥體、閥桿、閘板、密封圈、電動推桿等零件組成,并由底座、支撐柱構成一個剛性結構體。密封部位采用不銹鋼與橡膠 密封圈,密封性能好,使用壽命長,密封圈設置閘板上,易于維護時更...
產品型號:F9T43X
產品口徑(DN):300~2000(mm)
產品壓力(PN):0.05~0.25(Mpa)
更新日期:2012-05-02
免費詢價
24小時免費咨詢電話021-80392609
- 產品詳情
產品概述
電動推桿扇形眼鏡閥又名電動推桿扇形盲板閥,主要由左閥體、右閥體、閥桿、閘板、密封圈、電動推桿等零件組成,并由底座、支撐柱構成一個剛性結構體。密封部位采用不銹鋼與橡膠 密封圈,密封性能好,使用壽命長,密封圈設置閘板上,易于維護時更換密封圈,橡膠密封圈鑲鉗在閘板上。電動推桿盲板閥可以單臺遠距離控制,亦可多臺聯網遠距離控制,非正常情況下還可以利用閥門本身裝置手動操作。主要性能參數
| 公稱壓力MPa | 0.25 | 0.15 | 0.10 | 0.05 |
| 密封試驗壓力MPa | 0.275 | 0.165 | 0.11 | 0.055 |
| 強度試驗壓力MPa | 0.375 | 0.225 | 0.15 | 0.075 |
| 驅動源 | 電動裝置 | |||
| 適用溫度℃ | 丁腈橡膠 | 硅橡膠 | 氟橡膠 | |
| -20-100 | -20-200 | -20-300 | ||
| 適用介質 | 煤氣等有毒、有害、易燃氣體 | |||
| 啟閉時間S | ≤60 | |||
| 主要零部件材料 | 閥體、閘板為碳鋼;絲桿為合金鋼;螺母為錳銅合金、球墨鑄鐵;伸縮器為不銹鋼 | |||
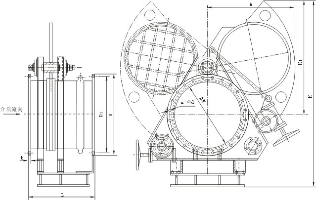
產品外形結構尺寸
| DN | D | D1 | b | n-φd | L |
| 300 | 440 | 395 | 18 | 12-φ22 | 500 |
| 350 | 490 | 445 | 18 | 12-φ22 | 600 |
| 400 | 540 | 495 | 24 | 16-φ22 | 600 |
| 450 | 595 | 550 | 24 | 16-φ22 | 600 |
| 500 | 645 | 600 | 26 | 20-φ22 | 600 |
| 600 | 755 | 705 | 26 | 20-φ26 | 600 |
| 700 | 860 | 810 | 26 | 24-φ26 | 600 |
| 800 | 975 | 920 | 35 | 24-φ30 | 800 |
| 900 | 1075 | 1020 | 35 | 24-φ30 | 800 |
| 1000 | 1175 | 1120 | 35 | 28-φ30 | 800 |
| 1100 | 1275 | 1220 | 35 | 36-φ30 | 800 |
| 1200 | 1375 | 1320 | 35 | 32-φ30 | 800 |
| 1300 | 1475 | 1420 | 35 | 36-φ30 | 800 |
| 1400 | 1575 | 1520 | 35 | 36-φ30 | 800 |
| 1500 | 1675 | 1620 | 35 | 36-φ30 | 850 |
| 1600 | 1790 | 1730 | 35 | 40-φ30 | 850 |
| 1800 | 1990 | 1930 | 35 | 44-φ30 | 1100 |
| 2000 | 2190 | 2130 | 35 | 46-φ30 | 1100 |
產品外形結構尺寸圖

聲明:本文中所有文字、數據、圖片均只適用于參考,F9T43X電動推桿扇形眼鏡閥性能參數、結構尺寸參數、價格等詳情,請聯系我們,電話:021-80392609。






